
こんばんは!
昨日は母の日でしたねー!
我が家は手巻き寿司にしてみました。ものすごく定番な感じでしたw
さてさて、今日はさっそくリビングに作ったキャビネットの作業工程をざっくりご紹介します!
昨日はどう書いたらいいのかうんうん悩んでそのまま寝ちゃったんですけどw
頑張ってもうまく説明できそうもないのでシンプルにだらだらといくことにしました!w
写真多めとなっておりますがご勘弁を~
まずはボンドを乾かしたりする必要のある細かいものや部品的なものから作っていきます。
その1
とりあえず作ったのは上段の扉から。
1×2のSPF材を45度に角をカット。
マイターボックスというのを使うと45度に簡単に切れます。
これをボンドでくっつけて片面だけタッカーで補強留めします。
こんな感じ。
おわかりでしょうか、思いっきり45度がずれているのをw
「簡単に切れます♪」と少し上で言っておきながらこの様っす!
これが第一の失敗でした(しょっぱなからかよ!w)
しょうがないので隙間はパテで埋めることにしました。
その2
続いて作ったのが下段に入れる引き出し。
ボンドで留めて木枠を作ります。これは針葉樹合板ですね。
ボンドが乾いたら釘で固定します。
引き出し正面は釘でそのまま留めると見た目が悪いので「隠し釘」というのを使いました。
釘を打ち込んでから頭を横から叩くと、釘のヘッドがポロンと取れて、釘穴がとっても目立たな~い♪
裏面にはベニヤ板を釘でとんとん打ちつけます。
その3
それからそれからこちら。
1×2のSPF材を寝かした状態で木枠にしたものです。ボンド&両面タッカーで固定します。
これは何かといいますと…
これです!
引き出しの受け木枠でした。
その4
さてさてどんどん行きますよ。
次は下段用の底板にひと手間かけます。
基本棚板は針葉樹合板を使ってるんですけど、一番下の底板だけ前飾りをつけました。
1×2のSPF材を底板に直角につけます。
こういう風につけるのってボンドだとなかなかうまくいかないので、ここは両面テープで仮留めしてます。
そしてSPF材の方から隠し釘を打ってしっかり固定します。
こまいものを一通り作ったのでいよいよ本体。
下段から組み立てます。
その5
側面用の1×6と1×8のSPF材に、1×2のSPF材をこんな感じでボンドで貼り付けます。
上は両側に1.9cm空きをつくって木材を寝かして
真ん中は背板側にくっつけて木材を寝かして
下も背板側にくっつけ、下から1cm離して木材を立てて貼り付けます。
わかりづらいので図解するとこんな感じ。
2組の側板は向かい合わせに立つので線対称になるように隣に並べて組むといい感じです。
上と真ん中のは中側からネジ留め。
下は表側からネジ留めするので、ダボ穴を開けてからネジ留めします。
その6
その4で作った底板を下側につけた1×2のSPF材にのっけるようにして裏からネジ留めします。
ちなみにこれが第二の失敗ですが、またこの詳細は後日w
その7
棚板を真ん中の1×2のSPF材に乗っけて固定。
これは上側からネジ留めします。
上部は1×2のSPF材を木枠を作るように固定。これは側板の表側から留めてるのでダボ穴あけて留めてます。
写真ブレててすんません^^;
その8
ひっくり返して引き出しを入れます。ぴったりにすると開かなくなっちゃうので、定規を挟んでます。
その3で作った引き出しの受け木枠を上に乗せ、側板の表側からダボ穴開けてネジ留めします。
その9
天板をつけます。
ここもダボ穴を開けて。
はい、ここが第三の失敗。なんと私、天板のサイズを間違えました~www
側板の厚みをプラスするのを忘れていたんですね…==;
左右1.5cm飛びださせるはずが、左右5mmくらい足らないという事態…ああ、何度計算ミスをするの私……orz
その10
しょんぼりしつつダボ穴を埋めます。
ボンド入れてダボ入れて…
余分をのこぎりでカット!写真はない!w
ひとまずこれで下段は終了。背板はペイントしてからつけます。
上段はサイズが違うだけで基本同じ工程の繰り返しですので省略します。
側板作って
底板と棚板と上部の補強材つけて
サイズミスってる天板つけて出来上がり。
ちなみに家具作成の間、天板だけではなくいろんな木材を計算ミスしてたため、端材から新しく切りなおしたり、カットしてもらったのを余分な分切ったりという数々の失敗をしていましたw
いやぁ…設計甘いwww
ペイントはアサヒペンの水性オイルステインの「ウォルナット」を塗った後、アトムペイントのフリーコートというペンキの「ホワイトアイボリー」を塗りました。
オイルステインは下段内側の全体を塗り、あとは角など、後でペンキを削る予定の部分だけ塗りました。
扉とか引き出しは全部塗ったかな。
ペンキは木目が見えないように2度塗りしてます。
背板はオイルステインだけでいこうと思ってたんですけど、針葉樹合板がステインを吸い込むとおまえはトラかシマウマか!みたいになって気持ち悪かったのでw、水で薄めたペンキを塗ってやわらげときました。
余談ですが、リビングにあった別の収納も同じペンキで二度塗りしてましたのです。
プリント合板家具だったので、下地スプレーをしてから塗ってますよ。
ペンキがよく乾いたら、角っこなどヤスリで削ります。
天板足りてないところが削って複雑になった様子w
背板を裏から釘で留めて、取っ手や蝶番をつけて引き出しや扉類をくっつけたら完成です!
じゃーん!!!
うむ、何か説明してないものがついてますねw
ていうか作ったはずのものが使われておりません。お気づきでしょうか。
これについては次回、家具作りの失敗編の中でお送りしたいと思います!
めちゃくちゃ分かりづらい記事でしたが御拝読ありがとうございました!
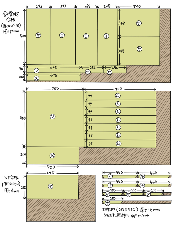
正確な木取り図(間違えまくってましたから書きなおしましたw)と詳しい設計図は次回お見せします~!
ではでは!本日はこれにてー!
おやすみなさいませ!
あ、何か質問あったらお気軽にどぞ!(失敗だらけの私に聞いてもしょうがねーだろ!って思われそうですがw)
ランキングに参加しております。
応援いただけたら嬉しいです!「カフェ風」ボタンぽっちりよろしくお願いします!![]()
にほんブログ村